Kvalitet på alle plan
I Nøstet Sjøfront er det lagt ned mye ressurser i å maksimere og arbeide inngående med de enkelte leilighetens planløsning, og å ta de viktige prioriteringene som skaper den ekstra følelsen av boglede. Interiørarkitektene i Paulsen & Nilsen har gjort en grundig jobb med hver enkelt plantegning i prosjektet. Det handler om å skape gode siktlinjer og gjennomgående naturlig lys, og at soverom er plassert i stille soner med god plass til nattbord og en ekstra bred seng.
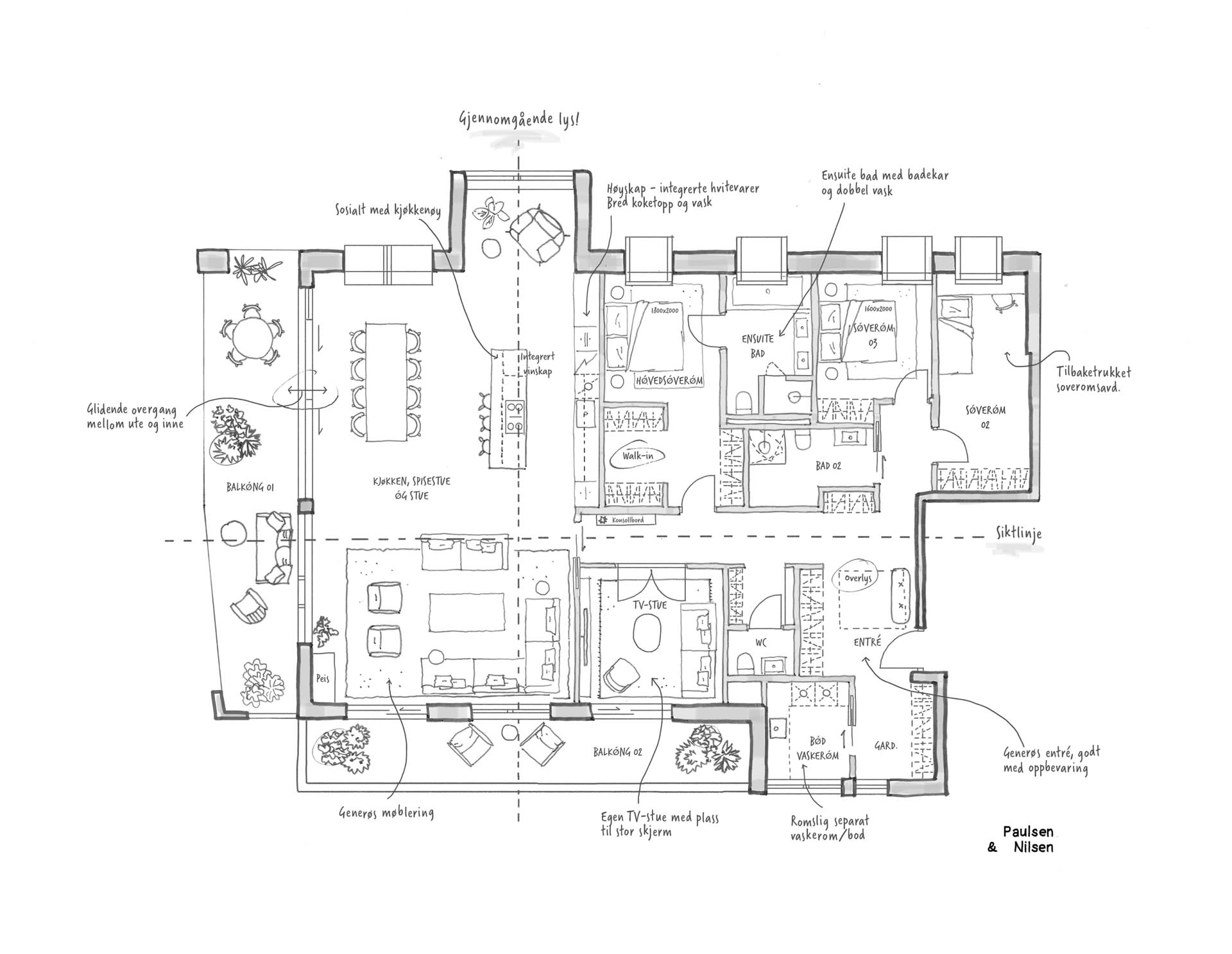
Litt ekstra plass til livskvalitet.
Men det handler også om rikelig med garderobeplass på soverom og i gang, som gjør hverdagen mye enklere og skaper romfølelse i trafikkerte soner.
På bad og kjøkken har det vært prioritert å skape rikelige arbeidssoner, med plass til brede vasker og ovn i høyden. Listefritt er også et viktig stikkord, både estetisk og praktisk. Listefrie rom oppleves å ha en mye høyere estetisk kvalitet – og du slipper å støvsuge listene dine en gang i uken.
Interiørarkitektene har fokusert på romløsning, siktlinjer og naturlig lys for å sikre høy bokvalitet. Her vises leilighet 6A 501.
Smarte løsninger som løfter hverdagen
Et godt hjem handler om mer enn bare kvadratmeter – det er de smarte løsningene som virkelig gjør en forskjell. Her finner du funksjonelle kjøkken med høyskap, brede koketopper og et tidløst design, mens en sosial kjøkkenøy blir naturlig samlingspunkt for venner og familie.
På badet gir badekar, dobbel vask og eksklusive detaljer en spa-følelse i hverdagen, mens walk-in-garderoben sørger for orden og oversikt. Store vinduer slipper naturen inn og skaper en sømløs overgang mellom inne- og uterom. Stuen er romslig og fleksibel, designet for både hverdager og feiringer. Her er det rom for livet – på alle plan.
Gode valg på kjøkken og bad
Drømmekjøkkenet AS (Ballingslöv) er en av Nordens mest tradisjonsrike og velrennomerte kjøkkenleverandører, og står for leveransen av den elegante innredningen på både kjøkken og bad, samt en del av garderobeløsningene. Her hever blant annet armaturer fra Dornbracht uttrykket og opplevelsen av håndfast kvalitet.
Godt planlagt. Ekstremt godt gjennomført.
Detaljer & design ved sjøen
Paulsen & Nilsen er blant landets ledende interiørarkitekter. Kjent for arbeidet de har gjort på den tidligere amerikanske ambassaden i Oslo, nye Deich og utallige private boligprosjekter. Nå skal de gjøre en like fantastisk jobb med interiøret i Nøstet Sjøfront.
